Villa PH | SEKOU | BÉNIN

ANNEE
2025
Localisation
SEKOU, BENIN
Type
Residence
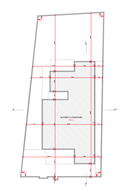
surface
172,00 m2
MISSIONS
Esquisse - Avant projet détaillé
Devis Quantitatif et Estimatif

Habitat individuel et élevage intégré,gestion stratégique du foncier

RESUME

Optimisation résidentielle avec un espace d’élevage domestique

Conçu pour concilier vie familiale et activités domestiques, ce projet maximise l’usage d’un foncier  de 35,36m × 16,79 m.

Le projet s’inscrit dans une logique de valorisation foncière progressive et maîtrisée, en adéquation avec les contraintes budgétaires et le mode de vie du maître d’ouvrage, actuellement résident à l’étranger. Dès la conception, celui-ci a souhaité anticiper son retour par un habitat durable intégrant un espace d’élevage domestique, composante essentielle de son projet de vie et de son autonomie future.

L’architecture contemporaine, aux lignes sobres et aux finitions en ciment béton gris, a été retenue pour sa durabilité, sa facilité d’entretien et sa cohérence économique. La réalisation est prévue par phases, avec la construction initiale du rez-de-chaussée et un accès toiture, suivie ultérieurement d’une extension verticale. Cette phasage n’exclut pas une étude globale dès l’origine : fondations, structure et plan d’étage ont été dimensionnés pour le projet final, et le permis de construire est déposé pour l’ensemble du programme, garantissant cohérence architecturale et optimisation de la valeur du bien dans le temps.

Le rez-de-chaussée s’organise autour d’un séjour-repas convivial, d’une cuisine fonctionnelle avec escalier, d’un garage intégré et de quatre chambres, chacune équipée de sa salle de bain privative, assurant confort et intimité.
La façade avant, volontairement minimaliste, intègre une terrasse couverte et le garage, créant une transition fluide entre l’espace public et l’habitat tout en offrant un accueil ombragé et fonctionnel.
À l’arrière, le bâtiment s’ouvre sur un espace d’élevage domestique aménagé, composé d’une pelouse clôturée pour poules et lapins, d’un poulailler dédié et d’une terrasse couverte, faisant de cet extérieur une véritable extension productive et vivante de la maison.

MISSIONS

Esquisse, Avant projet détaillé, Études techniques ( structure, électricité, plomberie)
Devis Quantitatif et Estimatif

PHOTO CREDIT

SNK ARCHI

Travaux similaires