Localisation
Type
Surface
MISSIONS
Maison évolutive en zone en attente de recasement, pensée pour anticiper l’urbanisation future.
RESUME
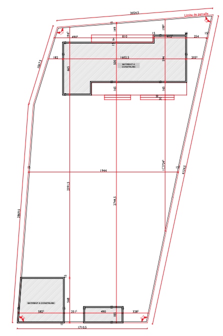
Implanté en zone en attente de recasement à Hêvié, ce projet s’inscrit dans un tissu urbain en mutation, marqué par une urbanisation spontanée, l’absence de voirie et l’inexistence de réseaux structurants. La stratégie architecturale repose sur une adaptation au contexte incertain et sur une anticipation des évolutions futures du cadre bâti, notamment après recasement ou lotissement officiel.
Le bâtiment est volontairement positionné en fond de parcelle, afin de libérer l’avant potentiellement sujet à une réduction lors des aménagements futurs. Ce choix permet de sécuriser l’investissement tout en facilitant une éventuelle reconfiguration. Les matériaux utilisés, notamment la brique de terre comprimée (BTC) et une toiture légère, traduisent une volonté de durabilité, d’économie de moyens et de facilité de démolition/reconstruction si nécessaire.
Ce projet incarne une réponse souple et résiliente à l’incertitude foncière, conjuguant confort immédiat et adaptabilité urbaine.
MISSIONS
Esquisse – Conception – Études techniques – Devis Quantitatif et Estimatif
PHOTO CREDIT
SNK ARCHITECTURE SARL