Aménagement intérieur post-VEFA | Île-de-France

ANNEE
2022
Location
BEZON - FRANCE
Type
Residence
Surface
50 m2
MISSIONS
Conception
Design Interieur
Suivi chantier

Un intérieur sobre, élégant et personnalisable, conçu pour s’adapter à la vie de ses occupants. Ce projet post-VEFA transforme un bien standardisé en un logement unique, harmonieux et prêt à vivre.

RESUME

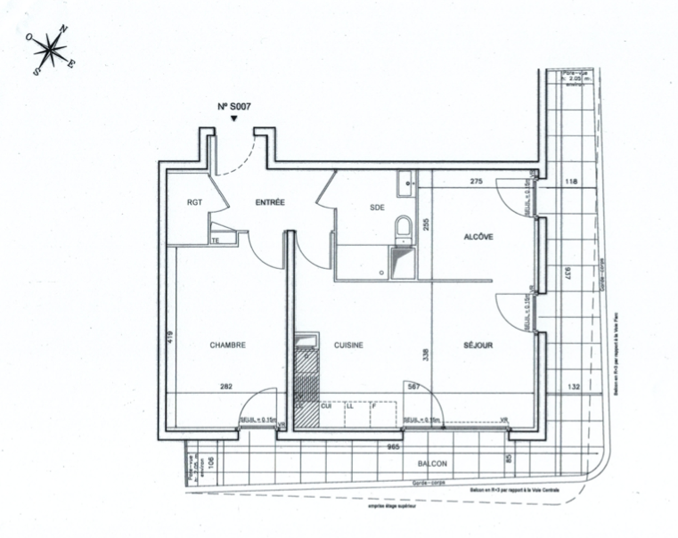
Ce projet concerne l’aménagement complet d’un appartement acquis en VEFA (Vente en l’État Futur d’Achèvement). La mission a porté sur la relecture des volumes proposés par le promoteur, afin d’optimiser les usages, les ambiances et la fonctionnalité du lieu.

L’intervention comprend :
le relevé de l’existant à la livraison,
la proposition d’un aménagement intérieur et extérieur (mobilier, implantation, traitement de la terrasse),
l’accompagnement dans le choix des matériaux, des luminaires, des couleurs, du mobilier,
la constitution d’une liste d’achat complète (mobilier, électroménager, objets de décoration), jusqu’à l’assistance au montage.

L’espace a été pensé dans un style contemporain sobre et lumineux, avec un jeu de contrastes entre le bois, le blanc et le noir. Les pièces à vivre favorisent la convivialité, tandis que les chambres misent sur le confort et l’élégance. Un projet clé en main pour valoriser un bien livré brut.

MISSION

Relevé de l’appartement à la livraison
Étude d’aménagement intérieur et extérieur (terrasse)
Optimisation des espaces de vie (salon, cuisine, chambres)
Sélection de matériaux, mobilier et luminaires
Élaboration d’une liste d’achat complète
Conseil et suivi pour la mise en place

PHOTO CREDIT

SNK ARCHITECTURE

Ambiance contemporaine, minimaliste et chaleureuse
Palette contrastée : blanc, bois naturel, noir mat
Mobilier design aux lignes légères
Valorisation de la lumière naturelle (voilages, luminaires blancs)
Espaces fluides et fonctionnels adaptés à un usage quotidien

Travaux similaires