Aménagement intérieur,bibliothèque CEG 2 | DJOUGOU | BENIN

ANNEE
2024
Localisation
DJOUGOU
Type
Equipement
SURFACE
8,40 m x 9,89 m
MISSIONS
Avant projet détaillé
Design Interieur
Design de meubles
DQE

Ce projet s’inscrit dans une démarche sociale forte portée par SNK ARCHITECTURE, qui ambitionne d’accompagner chaque collège et école publique du Bénin dans la création d’une bibliothèque de qualité.

RESUME

Suite au succès de l’aménagement de la bibliothèque du CEG 1 de Djougou, nous avons été sollicité pour le CEG 2.

Le projet vise la transformation et la renovation d’une salle de classe du CEG 2 en une bibliothèque moderne et fonctionnelle, répondant aux besoins éducatifs des élèves et du personnel.
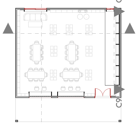
La salle, d’une dimension de 8,40 m par 9,89 m, était initialement équipée de manière rudimentaire avec quelques tables, chaises et étagères murales, ne permettant pas un usage optimal pour une bibliothèque scolaire.

Notre proposition d’aménagement s’appuie sur l’utilisation du bois local, abondant dans la région de Djougou, et sur le savoir-faire des artisans locaux, valorisant ainsi les ressources et compétences de la communauté.
Le design proposé, adopte une esthétique contemporaine et chaleureuse, adaptée à un espace éducatif.

Structure et agencement :
La salle est divisée en plusieurs zones fonctionnelles :
un espace de lecture individuel près de la fenêtre avec une banquette intégrée , un coin de travail collaboratif avec une grande table entourée de chaises, et un espace de rangement optimisé avec des étagères blanches.

Une plateforme surélevée en bois est intégrée le long du mur principal pour créer une zone décontractée, pour un accès facile aux livres.

L’aménagement de la bibliothèque du CEG 2 de Djougou Nord transformera une salle de classe classique en un lieu moderne, fonctionnel et inspirant, tout en valorisant les ressources et talents locaux.

Ce projet illustre l’engagement de SNK ARCHITECTURE  à soutenir l’éducation au Bénin à travers des espaces de qualité, adaptés aux besoins des élèves et ancrés dans le tissu social et culturel de la région.

MISSIONS

Esquisse, avant projet détaillé, design des meubles, détails techniques, devis quantitatif et estimatif, participation à l’élaboration d’une campagne de crowfunding

PHOTO CREDIT

SNK ARCHITECTURE SARL

Volet social et impact communautaire
En impliquant des artisans locaux et en utilisant des matériaux de la région, le projet favorise l’économie locale et renforce les compétences des communautés.
Cette initiative vise également à promouvoir l’accès à l’éducation et à la culture pour les élèves, en leur offrant un espace propice à l’apprentissage, à la créativité et au développement intellectuel.
La réussite de l’aménagement de la bibliothèque du CEG 1 a démontré l’impact positif d’un tel espace sur la motivation des élèves, leur réussite scolaire, et le CEG 2 aspire à reproduire cette dynamique.

Travaux similaires